• About
    • Origin Story
    • Experience
  • Work
    • Process
    • Projects
  • Blog
  • Contact
  • Menu Menu
Scroll to next section Scroll to next section

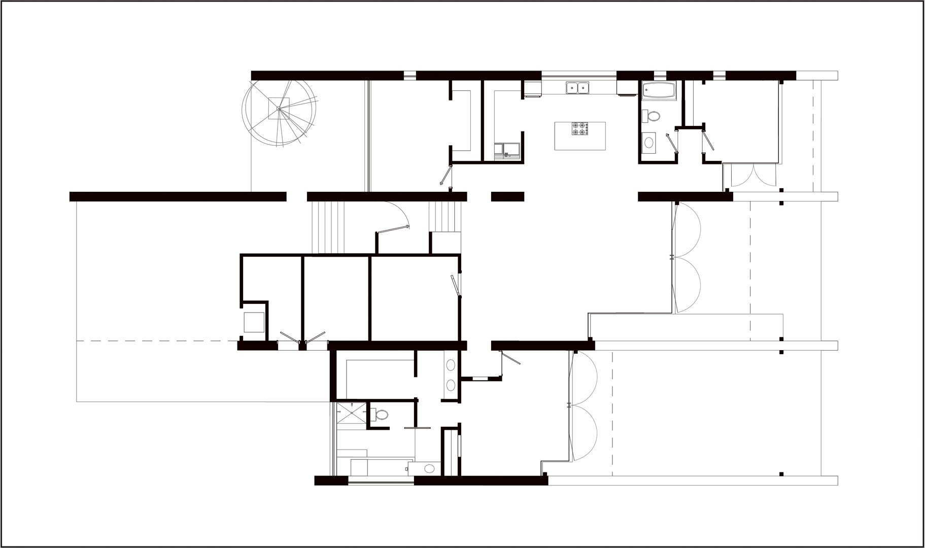
Falbo House

 STRATA 

Inspired by the layering of sedimentary rock in the Verde Valley and nearby Sedona, the design concept separates horizontal geological layers and places them vertically as rammed earth walls capturing three canyon bays. The central periwinkle stucco wall signals entry, aligns on the major view towards Sedona, and anchors the public living areas. The interior space sculpturally and naturally steps down the existing grade as people move from the entry towards the patios.

Falbo House

Clarkdale, AZ, 2006

Residence

Project designed while employed at Slingshot Architecture 

Privacy policy

We don’t sell your information

Strataz.com

4702 East Euclid Avenue

Phoenix, Arizona 85044

Greg Wattier, AIA

greg@strataz.com

602-206-9946

Add more layers to your life.

Subscribe to receive emails on all things Strataz.com

Scroll to top Scroll to top Scroll to top